
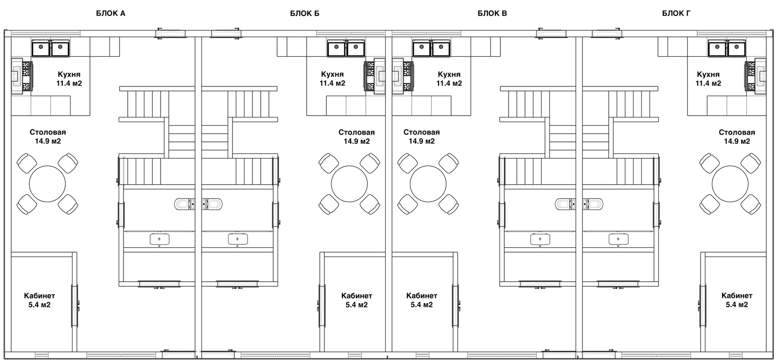
Кухня сочетает в себе компактность и простор: всё необходимое всегда под рукой, при этом пространство остаётся светлым и свободным. Удобная планировка делает её функциональной, а открытость к столовой и гостиной превращает кухню в центр общения и жизни в доме.

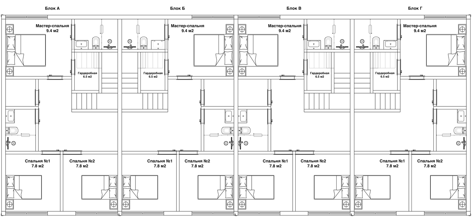
Ванная комната оформлена в современном стиле с использованием качественных материалов и продуманного освещения. Простор и эргономичная планировка создают комфорт для ежедневного использования, а современные решения превращают ванную в место, где практичность сочетается с эстетикой.

Задний двор дома продуман как приватное пространство для отдыха и жизни на свежем воздухе. Здесь можно устроить барбекю, насладиться временем у бассейна, поиграть с детьми на газоне или просто провести вечер в тишине. Уютная атмосфера и гармоничный ландшафт делают задний двор естественным продолжением дома.

Дома возводятся по современным каркасным технологиям, которые сочетают энергоэффективность, надёжность и скорость строительства. Каркас обеспечивает прочность и долговечность здания, а утеплённые стены сохраняют тепло зимой и прохладу летом. Такое решение делает дома экологичными, экономичными в эксплуатации и комфортными для круглогодичного проживания.

Для внешней отделки используется виниловый сайдинг — практичное и долговечное решение, которое не требует сложного ухода. Он устойчив к влаге, солнечным лучам и перепадам температуры, сохраняя привлекательный вид дома на долгие годы. Такой материал надёжно защищает стены, обеспечивая эстетичность фасада и его долговременную сохранность.

Территория каждого дома продумана до мелочей: выполнен ландшафтный дизайн передних и задних дворов. Зелёные насаждения, аккуратные дорожки и декоративные элементы создают гармоничное и ухоженное пространство. Передний двор подчёркивает статус и эстетику дома, а задний — превращается в приватную зону отдыха для всей семьи.



