
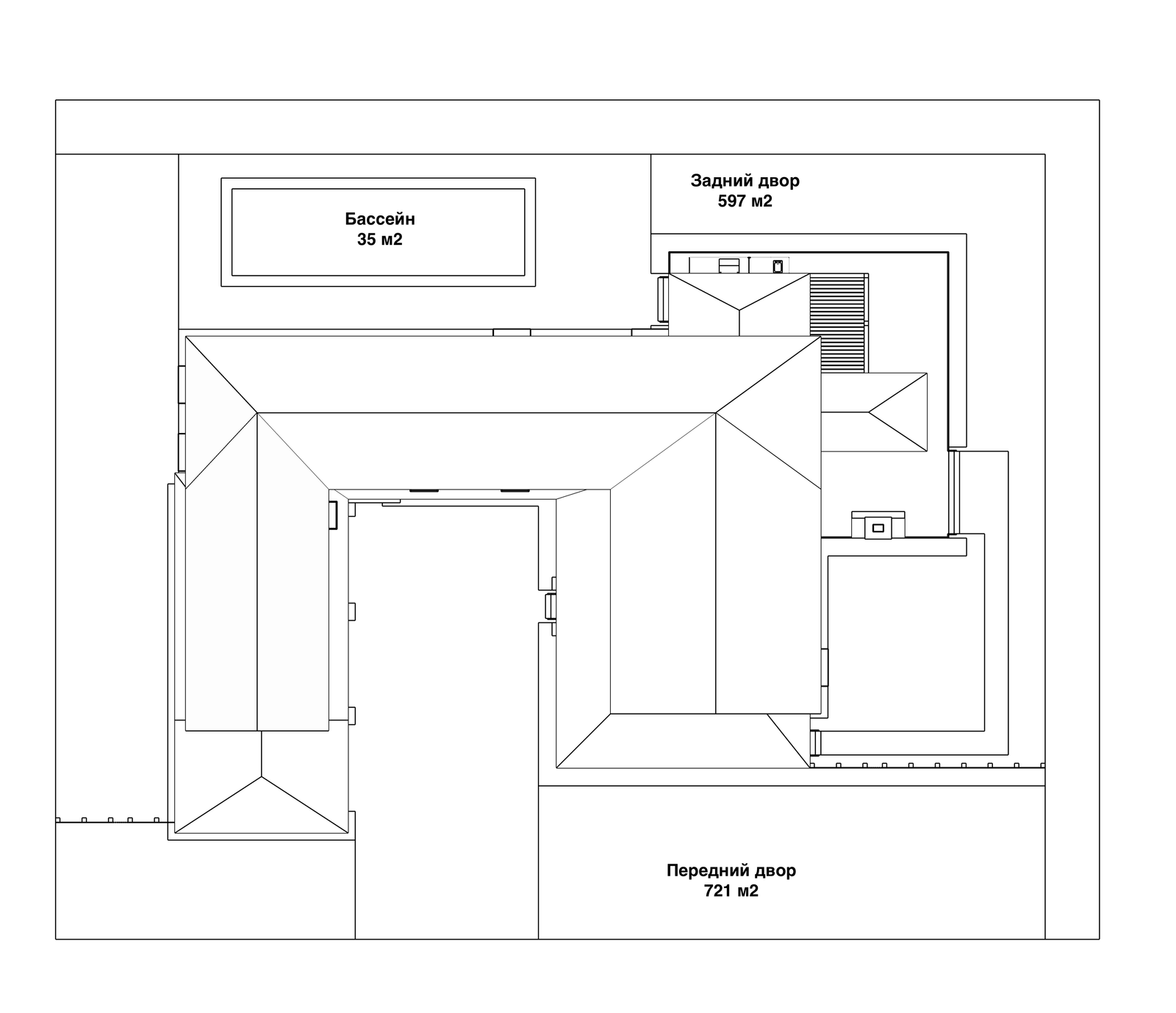
					Дом спроектирован в форме буквы «П»: слева расположены ворота тройного гаража, а справа — терраса, идущая вдоль каминного зала. Такое решение формирует внутренний передний двор как просторный и защищённый. Он создаёт атмосферу уюта и гостеприимства ещё до того, как вы вошли в дом.
				

На заднем дворе расположена просторная зона для отдыха и развлечений. Здесь предусмотрены собственный бар, площадка для барбекю и большой бассейн. Всё создано для того, чтобы проводить время с комфортом — будь то спокойный вечер у воды или весёлые встречи с друзьями и близкими.

На территории оборудован полноценный уличный бар, рядом с которым расположен большой камин. Это пространство создаёт особую атмосферу — здесь можно провести уютный вечер в кругу семьи или устроить яркую вечеринку на свежем воздухе. Бар и камин объединяют комфорт и стиль, делая отдых ещё более насыщенным и запоминающимся.

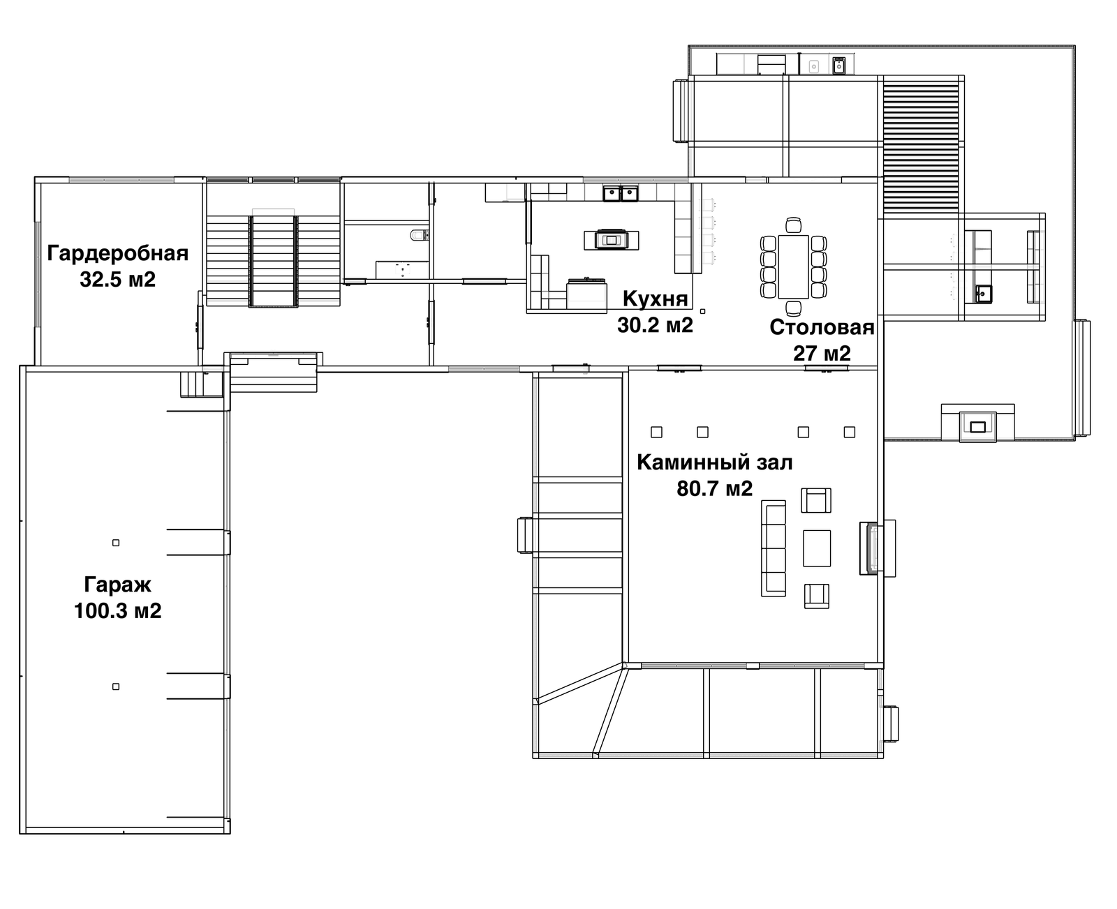
Кухня продумана как просторное и удобное пространство, объединённое со столовой. Барная стойка на несколько мест создаёт уют для семейных завтраков и встреч с друзьями. Рядом расположена кладовая с удобным проходом, а двери-гармошки из столовой ведут прямо к уличному бару и зоне барбекю, соединяя дом с атмосферой отдыха на свежем воздухе.

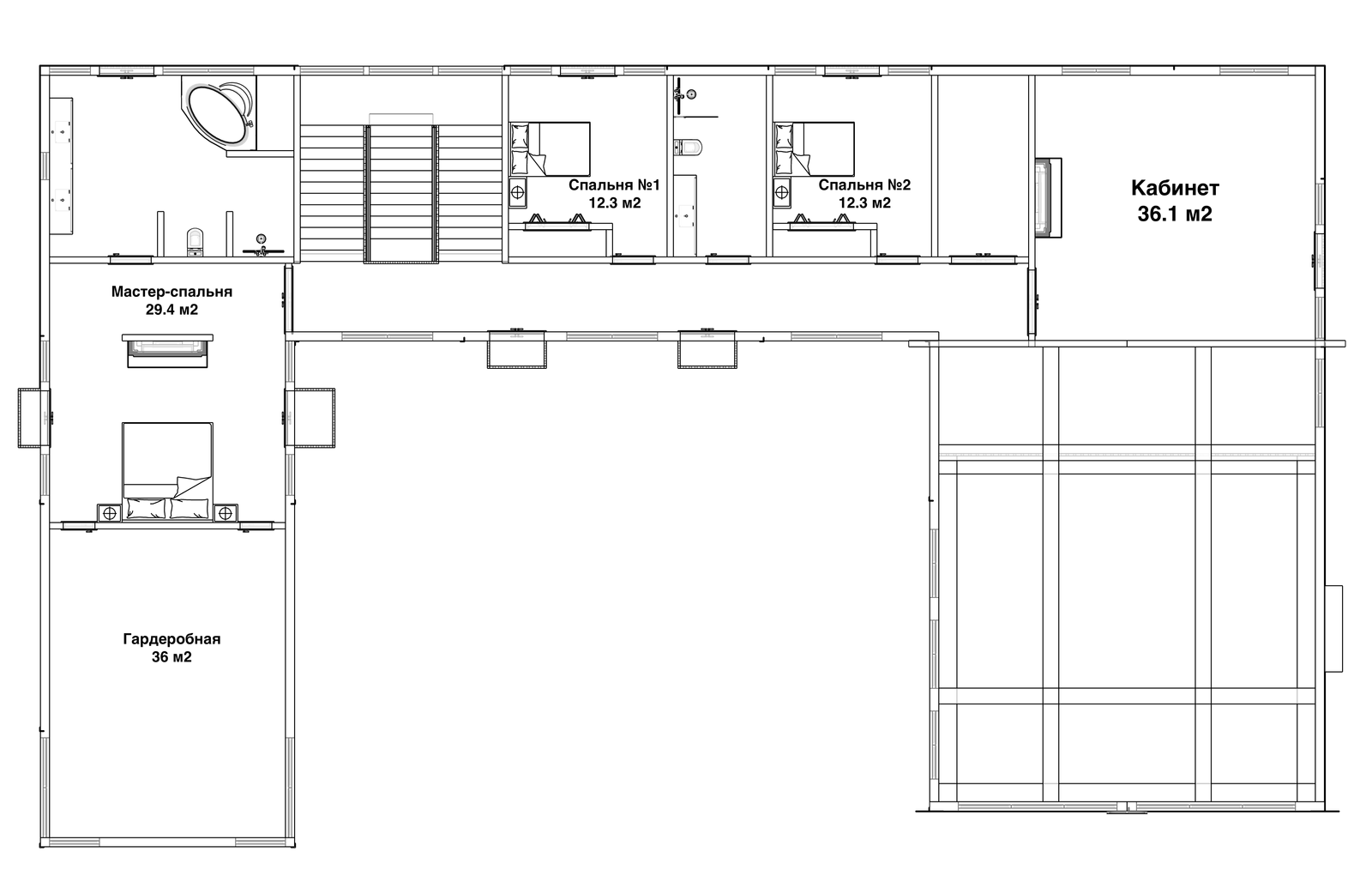
Эффектная панорамная лестница становится центральным элементом интерьера. Благодаря широким пролётам и большим окнам пространство наполняется светом, а вид из разных уровней дома открывается по-новому. Лестница не только функциональна, но и подчёркивает стиль и статус дома, создавая ощущение простора и легкости.

Каминный зал занимает всё правое крыло дома и простирается от первого этажа до самой крыши второго этажа. Пространство наполнено светом благодаря панорамным окнам, а встроенная библиотека делает его особым местом для уединения и отдыха. Высота и масштаб зала создают ощущение простора, а камин придаёт дому атмосферу тепла и благородства.

Дом объединяет комфорт внутренних пространств с преимуществами отдыха на свежем воздухе. Здесь есть всё для полноценной жизни: уличный бар и зона барбекю, большой бассейн, просторный газон и патио для отдыха. Такое сочетание делает дом центром семейного уюта и местом, где удобно принимать гостей или наслаждаться тишиной в кругу близких.

Дома возводятся по современным каркасным технологиям, которые сочетают энергоэффективность, надёжность и скорость строительства. Каркас обеспечивает прочность и долговечность здания, а утеплённые стены сохраняют тепло зимой и прохладу летом. Такое решение делает дома экологичными, экономичными в эксплуатации и комфортными для круглогодичного проживания.

Для отделки фасадов используется клинкерный сайдинг — прочный, долговечный и эстетичный материал. Он надёжно защищает дом от влаги, мороза и перепадов температур, при этом сохраняя привлекательный внешний вид на долгие годы. Богатая фактура и естественные оттенки делают фасад стильным и солидным, подчёркивая статус дома.

Территория каждого дома продумана до мелочей: выполнен ландшафтный дизайн передних и задних дворов. Зелёные насаждения, аккуратные дорожки и декоративные элементы создают гармоничное и ухоженное пространство. Передний двор подчёркивает статус и эстетику дома, а задний — превращается в приватную зону отдыха для всей семьи.



