
Гостиная с двухсветным пространством открывается вверх сразу на два этажа, а большие панорамные окна наполняют её светом и ощущением свободы. Высота и открытая планировка создают вау-эффект, а виды за окном становятся частью интерьера, делая дом ещё более просторным и впечатляющим.

Кухня спроектирована как открытое и удобное пространство, где есть всё для комфортной жизни и кулинарного вдохновения. Она объединена со столовой, что делает общение во время готовки особенно лёгким и приятным. Продуманная планировка и современное оснащение превращают кухню в сердце дома — место, где собирается вся семья.

Высокие потолки и открытая планировка создают впечатляющее двухсветное пространство между этажами. Оно наполняет дом светом, визуально расширяет интерьер и подчёркивает его архитектурную выразительность. Такое решение дарит ощущение простора и делает атмосферу дома лёгкой и современно-статусной.

Ванная комната продумана как место для отдыха и восстановления сил. Просторное помещение с окнами наполняется естественным светом, создавая ощущение уюта и гармонии. Современная отделка и эргономичная планировка делают ванную не только красивой, но и максимально комфортной для ежедневного использования.

В доме предусмотрены камины в гостиной и спальне. Живое пламя создаёт атмосферу тепла и уюта, делая каждый вечер особенным. В гостиной камин становится центром общения и семейных встреч, а в спальне — источником приватности и спокойствия. Такое решение объединяет функциональность и эстетику, наполняя дом гармонией.

На участке предусмотрены удобные и аккуратные дорожки, которые соединяют все ключевые зоны — от входа в дом до двора и зоны отдыха. Они делают передвижение комфортным в любое время года и создают завершённый вид ландшафта. Практичность сочетается с эстетикой, подчёркивая ухоженность территории.

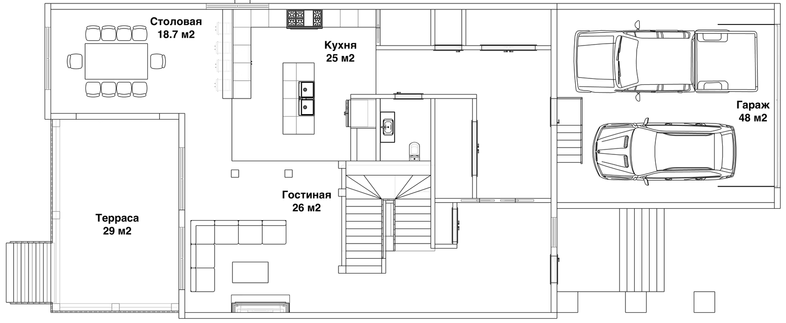
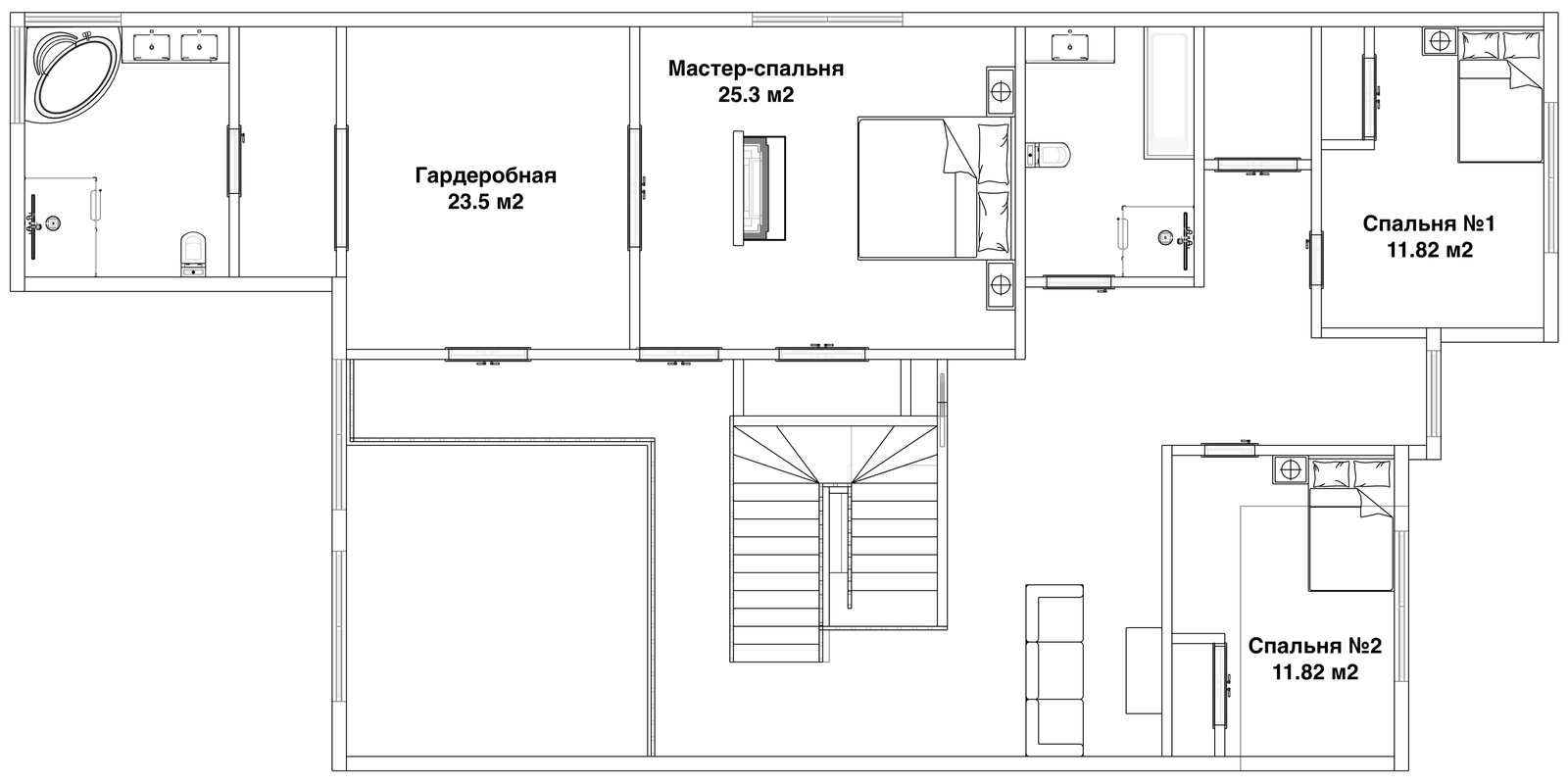
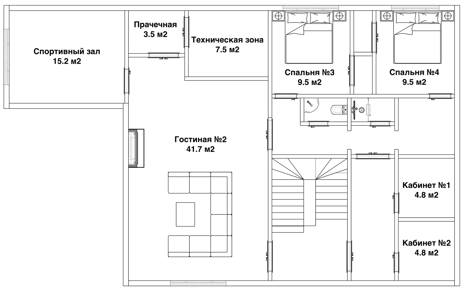
Каждый дом спроектирован так, чтобы использовать площадь максимально эффективно. Все помещения связаны между собой логично и удобно: зоны отдыха, работы и хранения расположены там, где они действительно нужны. Такое решение создаёт ощущение гармонии и делает повседневную жизнь комфортной и организованной.

Дома возводятся по современным каркасным технологиям, которые сочетают энергоэффективность, надёжность и скорость строительства. Каркас обеспечивает прочность и долговечность здания, а утеплённые стены сохраняют тепло зимой и прохладу летом. Такое решение делает дома экологичными, экономичными в эксплуатации и комфортными для круглогодичного проживания.

Для отделки фасадов используется клинкерный сайдинг — прочный, долговечный и эстетичный материал. Он надёжно защищает дом от влаги, мороза и перепадов температур, при этом сохраняя привлекательный внешний вид на долгие годы. Богатая фактура и естественные оттенки делают фасад стильным и солидным, подчёркивая статус дома.

Территория каждого дома продумана до мелочей: выполнен ландшафтный дизайн передних и задних дворов. Зелёные насаждения, аккуратные дорожки и декоративные элементы создают гармоничное и ухоженное пространство. Передний двор подчёркивает статус и эстетику дома, а задний — превращается в приватную зону отдыха для всей семьи.



